} MCSV-200 -

Caractéristiques

-20ºC -15ºC

Plage

3

Étagères

2020 mm

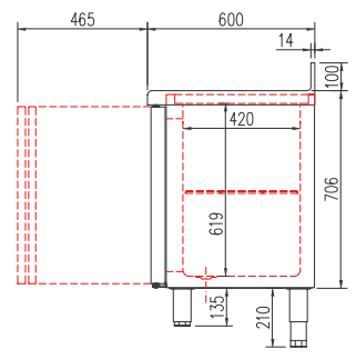
Largeur

850 mm

Hauteur

600 mm

Profondeur

380 L

Volume

Réfrigérants

R290

Oui

Standard

606 W

Puissance

548 kWh

Consommation

4 (30ºC-55%)

Classe

Description

  • Extérieur en acier inox AISI-304, sauf le dosseret et le fond
  • Intérieur en acier inox AISI-304, avec bords arrondis et fond embouti
  • Portes à ouverture réversible, avec système de fermeture automatique et
  • joint magnétique (reste ouverte à plus de 90° d'ouverture)
  • Double vitrage + LED
  • Plan de travail en acier inoxydable AISI-304 avec façade droite et dosseret sanitaire de 100 mm (en option sans dosseret)
  • Étagères intérieures en fil d'acier plastifié, réglables en
  • hauteur, sur supports en acier inoxydable
  • Pieds en tube d'acier inoxydable réglables en hauteur 135 - 210 mm
  • Unité de condensation ventilée et amovible
  • Évaporateur à tirage forcé, avec revêtement époxy anticorrosion
  • Évaporation automatique de l'eau de dégivrage
  • Isolation en polyuréthane injecté, densité 40 kg/m³, zéro effet
  • ODP et GWP
  • Contrôle numérique de la température, dégivrage optimisé, alarme en cas de
  • température de condensation élevée. Gestion efficace de la consommation d'énergie
  • Conditions de fonctionnement : température ambiante 32 °C