} TSR-250-S -

Caractéristiques principales

2545 mm

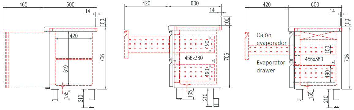
Largeur

850 mm

Hauteur

600 mm

Profondeur

Réfrigérants

R290

Oui

Standard

845 W

Puissance

379 kWh

Consommation

5 (40ºC - 40%)

Classe

Caractéristiques supplémentaires

4

Étagères

516

Volume

Description

  • Extérieur en acier inox AISI-304, sauf dosseret et fond
  • Intérieur en acier inox AISI-304, avec bords arrondis et fond embouti
  • Portes à ouverture réversible, avec système de fermeture automatique et joint magnétique (reste ouverte à plus de 90° d'ouverture)
  • TSRV : double vitrage + LED
  • Plan de travail en acier inox AISI-304 avec façade droite et tablier sanitaire de 100
  • mm
  • Étagères intérieures en fil d'acier plastifié, réglables en hauteur
  • Pieds en tube d'acier inox réglables en hauteur 135 - 210 mm
  • Unité de condensation ventilée et amovible
  • Évaporateur à tirage forcé, avec revêtement époxy anticorrosion
  • Évaporation automatique de l'eau de dégivrage
  • Isolation en polyuréthane injecté, densité 40 kg/m³, zéro effet
  • ODP et GWP
  • Contrôle numérique de la température, dégivrages optimisés, alarme en cas de
  • température de condensation élevée. Gestion efficace de la consommation d'énergie
  • Température de fonctionnement : TRS 40 °C ambiante
  • TSC/TSRV 32 °C ambiante

Imagen Técnica