} CGRE-751-SPF -

Caractéristiques principales

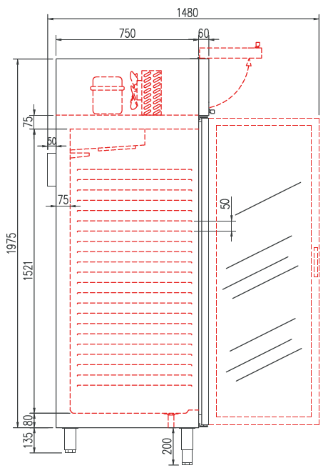
660 mm

Largeur

2130 mm

Hauteur

850 mm

Profondeur

Réfrigérants

R290

Oui

Standard

502 W

Puissance

260 kWh

Consommation

4 (30ºC - 55%)

Classe

Caractéristiques supplémentaires

3

Étagères GN 2/1

645

Volume

Description

  • Extérieur en acier inox AISI-304, sauf dosseret et fond
  • Intérieur en acier inox AISI-304, avec bords arrondis et fond embouti
  • Portes à ouverture réversible (751), double vitrage, avec système de fermeture
  • automatique et joint magnétique (reste ouverte à plus de 90° d'ouverture)
  • Éclairage intérieur LED
  • Éclairage intérieur LED
  • Étagères intérieures GN2/1 en fil d'acier plastifié, réglables
  • en hauteur
  • Pieds en tube d'acier inoxydable réglables en hauteur 135 - 200 mm
  • Tableau de commande amovible
  • Unité de condensation ventilée
  • Évaporateur à tirage forcé, avec revêtement époxy anticorrosion
  • Arrêt des ventilateurs à tirage forcé à l'ouverture de la porte
  • Évaporation automatique de l'eau de dégivrage
  • Polyuréthane injecté, densité 40 kg/m³, zéro effet ODP et GWP
  • Contrôle numérique de la température, dégivrage optimisé, alarme en cas de
  • porte ouverte et de température de condensation élevée. Gestion efficace de la
  • consommation d'énergie
  • Température de fonctionnement : 32 °C ambiant

Imagen Técnica