} MFK-100 -

Caractéristiques

0ºC +8ºC

Plage

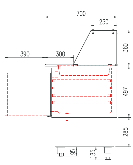
925 mm

Largeur

890 mm

Hauteur

700 mm

Profondeur

2

Étagères

169 L

Volume

Réfrigérants

R290

Oui

Standard

502 W

Puissance

764 kWh

Consommation

Caractéristiques Supplémentaires

2

Paires de Glissières

Description

  • Extérieur en acier inox AISI-304
  • Intérieur en acier inox AISI-304, avec bords arrondis et fond embouti
  • Portes à ouverture réversible, avec système de fermeture automatique et joint magnétique (reste ouverte à plus de 90° d'ouverture)
  • Modèles 100 et 140 : plan de travail en acier inoxydable avec tablette en polyéthylène blanc, coulissante
  • pour augmenter la surface de travail (autre couleur, sur demande)
  • Capacité des bacs GN sur le plan de travail (voir détail)
  • Dôme vitré sur le logement des bacs
  • Étagères intérieures GN 1/1 en fil d'acier plastifié, réglables en hauteur
  • Pieds en tube d'acier inoxydable réglables en hauteur 95 - 135 mm
  • Unité de condensation ventilée et amovible
  • Évaporateur à tirage forcé, avec revêtement époxy anticorrosion
  • Évaporation automatique de l'eau de dégivrage
  • Isolation en polyuréthane injecté, densité 40 Kg/m³, zéro effet ODP et
  • GWP
  • Contrôle numérique de la température, dégivrage optimisé, alarme en cas de température de condensation élevée. Gestion efficace de la consommation d'énergie
  • Température de fonctionnement à 32 °C ambiant

Options

  • grille supplémentaire GN-1/1
  • jeu supplémentaire de guides GN-1/1
  • serrure de porte en acier inoxydable
  • jeu de 4 roulettes
  • 230 V 60 Hz / 115 V 60 Hz
  • APPCC