} HECG-751-PF85 -

Description

  • Extérieur en acier inox AISI-304, sauf dosseret et fond
  • Intérieur en acier inox AISI-304, avec côtés et fond emboutis
  • Capacité pour grilles et bacs GN 1/1 ou GN 2/1
  • Grilles renforcées GN 2/1, en acier plastifié
  • Portes à ouverture réversible, avec système de fermeture automatique et joint magnétique (reste ouverte à plus de 90° d'ouverture)
  • Contre-porte en acier inox embouti
  • Serrure à clé, de série
  • Éclairage intérieur LED
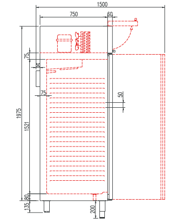
  • Pieds en tube d'acier inox réglables en hauteur 135 - 200 mm
  • Unité de condensation ventilée
  • Évaporateur à tirage forcé, avec revêtement époxy anticorrosion
  • Arrêt des ventilateurs à tirage forcé à l'ouverture de la porte
  • Évaporation automatique de l'eau de dégivrage de l'évaporateur
  • Isolation en polyuréthane injecté, épaisseur 85 mm sur tout le périmètre, densité 40 kg/m³, GWP et ODP nuls
  • Contrôle numérique de la température, dégivrage optimisé, alarme en cas de
  • porte ouverte et de température de condensation élevée. Gestion efficace de la
  • consommation d'énergie
  • Ventilateurs à haut rendement
  • Température de fonctionnement HEGR 40 °C HECG 32 °C

Imagen Técnica

Caractéristiques

-20ºC -15ºC

Plage

705 mm

Largeur

2130 mm

Hauteur

860 mm

Profondeur

3

Étagères

645 L

Volume

0

Paires de Glissières

Réfrigérants

R290

Oui

Standard

495 W

Puissance

369 kWh

Consommation

5 (40ºC - 40%)

Classe

Caractéristiques Supplémentaires

24

Niveaux Encastrés

Barres de Boucherie

Non

Chauffage

Non

Séchage