} AGM-1002 - Frío industrial y cámaras refrigeradoras

Descripción

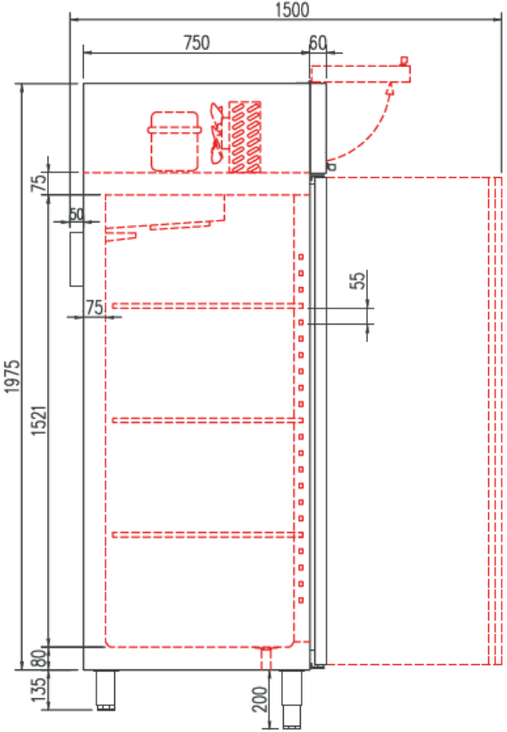
  • Exterior en acero inox AISI-304, excepto el respaldo y fondo
  • Interior en acero inox AISI-304, con aristas curvas y fondo embutido
  • Puertas de apertura reversible (751), con sistema de cierre automático y
    burlete magnético (permanece abierta al superar los 90° de apertura)
  • Cerradura con llave, de serie
  • Contrapuerta inox embutida
  • Luz interior LED
  • Estantes parrilla reforzados GN 2/1, de acero plastificado
  • Pies en tubo de acero inox ajustables en altura 135 - 200 mm
  • Cuadro de mandos y rejilla ventilación motor, desmontables
  • Unidad condensadora ventilada
  • Evaporador sistema tiro forzado, con recubrimiento epoxi anticorrosión
  • Paro ventiladores tiro forzado al abrir la puerta
  • Evaporación automática del agua de descarche
  • Poliuretano inyectado, densidad 40 Kg/m³, cero efectos ODP y GWP
  • 75 mm aislamiento perimetral
  • Control digital de temperatura, descarches optimizados, alarma por puerta
    abierta y alta temperatura de condensación. Eficiente gestión del consumo
    de energía
  • Temperatura de trabajo a 40°C ambiente
  • Departamento
  • Evaporador con recubrimiento epoxi anticorrosión
  • Motor independiente
  • Estantes GN 2/1 sobre guías de acero inoxidable

Imagen Técnica

Opciones

  • parrilla adicional GN-2/1 
  • par guías adicionales GN-2/1 
  • barras carniceras 
  • set 4 ruedas 
  • set 6 ruedas
  • respaldo inox 
  • tropicalizado 43°C
  • 230V 60Hz / 115V 60Hz 
  • pedal apertura puerta 
  • APPCC

Características

-2ºC +8ºC

Rango

-20ºC -15ºC

Rango Adicional

1370 mm

Largo

2130 mm

Altura

860 mm

Profundidad

6

Estantes

1290 L

Volumen

6

Pares de Guias

Refrigerantes

R290+R290

Estándar

502+606 W

Potencia

243+553 kWh

Consumo

Características Adicionales

Barras Carniceras

No

Estufaje

No

Secado